Patrimoine Mondial de l'humanité - UNESCO Agenda 21 du Puy-en-Velay
 
Imprimer cette pageEnvoyer � un ami WIKIOFACEBOOK
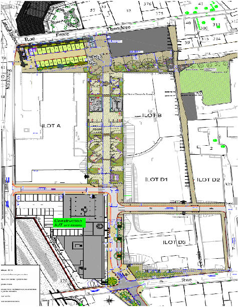
Deux nouvelles routes ouvertes sur le site du Pensio

A l'aube de la rentrée, les premiers étudiants en alternance à l'IUT ont pris leur quartier dans la nouvelle résidence étudiante flambant neuve. Le Lab du Pensio s'apprête à ouvrir ses portes à l'automne. Pour desservir ce nouveau site étudiant, deux nouvelles routes ont été créées et traversent désormais le site du Pensio. Les voiries ont été provisoirement ouvertes à la circulation pour permettre l’accès à la résidence étudiante et seront ouvertes définitivement au public le 3 octobre prochain. Laurent Wauquiez, Député de la Haute-Loire, Président de la région Auvergne Rhône-Alpes, Michel Chapuis, Maire du Puy-en-Velay, et Franck Paillon, Président de la SPL du Velay, se sont rendus sur place vendredi matin pour découvrir les premiers aménagements réalisés.



Améliorer la circulation dans le quartier du Pensio : des solutions qui se concrétisent

Très attachés à améliorer la circulation en ville, les élus du Puy-en-Velay ont pris le problème à bras le corps ces dernières années. Un premier carrefour élargi a été aménagé à l'angle des rues Latour Maubourg et des Capucins.
Aujourd'hui, ce sont deux nouvelles voies d'accès qui sont créées pour fluidifier ce secteur, entre la rue Latour Maubourg et la rue de la Ronzade.

La future voirie dite « du Pensio » sera ouverte définitivement le 3 octobre prochain. Elle est à ce jour ouverte aux véhicules qui desservent l’IUT, notamment la livraison des équipements liés au plateau technologique.
A terme, la rue du Pensio fera la jonction avec la rue Jean Barthelemy qui sera prolongée. L’ouverture de cette portion de voirie reste suspendu à la réalisation des constructions de part et d’autre de la route (îlots D1 et D3).

D'autres aménagements verront le jour sur ce secteur. L'étude de mobilité qui est en cours de réalisation sur l'ensemble du centre-ville devrait également améliorer les conditions de circulation.

Des entreprises locales sollicitées

STTPV, SRDTP, ODTP 43, Colas ont réalisé les terrassements, les tapis d'enrobés, les bétons désactivés sur les abords, et le pavage. L'entreprise EGEV a été chargée de l'installation des réseaux électriques, et de la pose des mâts d'éclairage.

La résidence étudiante accueille ses premiers étudiants !

Les 39 chambres de la résidence étudiante sont terminées depuis le mois de juin 2016. Meublées cet été, les premiers étudiants y sont installés depuis le mois août.

Le Fab Lab ouvrira à la rentrée de Toussaint

Le Plateau technologique de l’IUT sera ouvert à l’automne. Ls différentes salles informatiques se terminent. Il ne reste plus que la livraison du matériel pédagogique au cours du mois de septembre. Une salle particulière, toute verte et toute en arrondi, a nécessité quelques prouesses techniques ; elle permettra l’incrustation d'images numériques. Le FabLab du Pensio déménagera dans ses nouveaux locaux en octobre 2016 et les étudiants pourront en prendre possession à la rentrée des vacances de Toussaint.


Les travaux à venir :

-
Les travaux d’aménagement du théâtre en maison de santé : 2017
- Les travaux de voirie sur les rues Latour Maubourg, Ronzade et Frères Théodore : 2017
- Les travaux d’aménagement d’espaces verts, piétonnier en bordure de la rue de la Ronzade (côté îlot D3) et en cœur de quartier, le chemin de la Clède : 2019, en fonction du planning des constructions à venir sur l’ensemble de la ZAC (îlots A, B, D1 et D3)

Retour
Mairie du Puy-en-Velay
Hôtel de Ville - 1, Place du Martouret - BP 20317 - 43011 Le Puy-en-Velay cedex - Tél : 04 71 04 07 40 - Fax : 04 71 02 62 08 - contact.ville@lepuyenvelay.fr